Описание производителя
Geberit Duofix монтажный комплект Платтенбау для подвесного унитаза, Н112, клавиши Delta, цвет хром глянцевый, 12 cм (UP 100).Цель применения
- Для гипсокартонных стен
- Для встраивания в фальшстены по высоте помещения
- Для подвесных унитазов с размерами подключения согласно EN 33:2011
- Для подвесных унитазов с вылетом до 62 см
- Для встраивания перед стояками
- Для двойного смыва
- Для напольных покрытий толщиной 0–20 см
Характеристики
- Самонесущая pама с порошковой окраской
- Настенный монтаж с варьируемым положением для встраивания перед стояками, глубина 13–50 см
- Рама открытая сверху
- Рама с отверстиями ø 9 мм для крепления в деревянном каркасе
- Рама с установочными отверстиями для стенных анкеров Geberit Duofix для элементов с открытой сверху рамой
- Рама подготовлена для крепления крепежных скоб для установки нестандартного санфаянса
- Стойка оцинкованная
- Стойки с возможностью перемещения 0–20 см
- Опорные площадки пластиковые
- Глубина опорных площадок подходит для монтажа в U-образные профили UW 50
- Соединительное колено может монтироваться без использования инструментов
- Смывной бачок скрытого монтажа с фронтальной установкой
- Смывной бачок скрытого монтажа с противоконденсатной оболочкой
- При заводской установке возможен немедленный последующий смыв
- Подвод воды сзади или сверху по центру
- Оснащен трубкой подвода воды для подсоединения унитазов-биде Geberit AquaClean
- С возможностью крепления для электропитания
Объем поставки:
- Стойки
- 2 резьбовые шпильки М12 для крепления санфаянса
- Монтажная коробка для окна обслуживания из полистирола
- Угловой запорный вентиль R 1/2 с кольцом-адаптером, совместимый с MeplaFix
- Крепление для стока
- Комплект манжет ш 90 мм
- Фановый отвод для унитаза, ПНД, ш 90/90 мм
- Адаптер, ш 90/110 мм
- Две защитные заглушки
- Крепежные элементы
- Geberit смывная клавиша Delta21 (115.125.21.1)
Технические характеристики
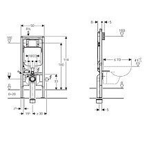
Размеры
-
Глубина, см12
-
Высота, см112
-
Объем бачка, л7.5
-
Межосевое расстояние для монтажа унитаза, см18
-
Диаметр слива9
-
Монтажная высота, см112
-
Монтажная глубина, см12
Внешнее исполнение
-
ЦветСиний, Белый
Особенности
-
Материал рамыМеталл
-
Подвод водыСверху
-
Механизм сливаМеханическая кнопка
-
Монтаж к капитальной стенеДа
-
Монтаж к стене из гипсокартонаНет
-
Монтаж к полуДа
-
Тип унитазаПодвесной
Схемы и инструкции
